
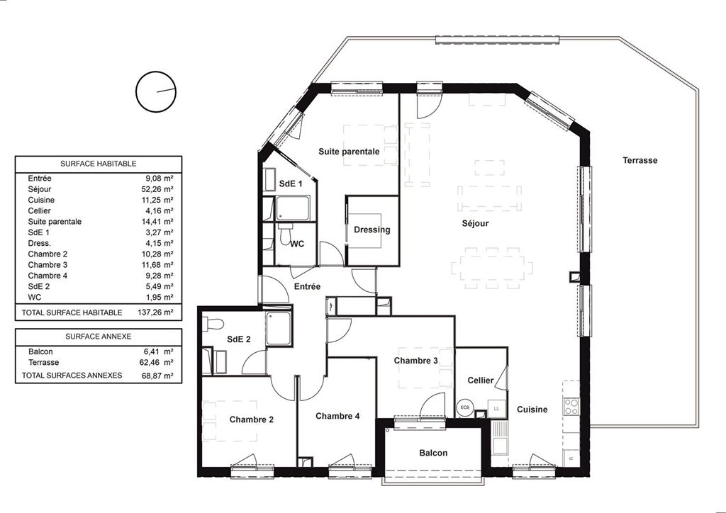
Bel appartement T5 neuf, de 137 m² habitables, ouvrant sur une terrasse de 69 m² au 3ème étage d'un petit immeuble de 22 logements, entre le parc Bourran et la place centrale de Mérignac. Il se compose d'une entrée, d'un grand séjour-cuisine de 64 m², ouvrant sur une terrasse de 62 m²; d'une belle suite parentale avec grand dressing et une salle d'eau, de trois chambres, d'une salle d'eau, d'un cellier et d'un wc. Conforme à la norme RT2012, il est équipé d'un chauffe eau thermodynamique et de radiateurs électriques à fluide caloporteur. Il dispose de deux places de stationnement au sous-sol. Le parc Bourran se trouve à 200 m, le cinéma, le tram et la médiathèque à 800 m. Charges mensuelles 205 euros, taxe foncière 2000 euros, honoraires d'agence à la charge du vendeur. Les risques auxquels ce bien est exposé sont disponibles sur le site Géorisques: www.géorisque.gouv.fr. Frais de notaire du neuf. L'appartement sera disponible au 3ème trimestre 2027.
Ajouter au panier
Imprimer le bien
Référence : 102
Nb. de pièces : 5
Nb. de chambres : 4
Etage : 3 ème
Ascenceur : oui
Surface habitable : 137 m²
Stationnement : Parking
Places en Extérieurs : 2
Surface terrasse : 62 m²
Accessibilité handicapée : oui
Chauffage : Individuel électrique
État général : Neuf
Année de construction : 2027
En copropriété : oui
DPE : Non Renseigné
GES : Non Renseigné
Les Honoraires d'agence seront intégralement à la charge du vendeur
Bien en copropriété de 22 lots
Charges courantes : 2460 € / an
Pas de procédures en cours
Entrée : 9.08 m²
Séjour-cuisine : 63.51 m²
Suite parentale : 14.41 m²
Dressing : 4.15 m²
Salle d'eau suite : 3.27 m²
Chambre 2 : 10.28 m²
Chambre 3 : 11.68 m²
Chambre 4 : 9.28 m²
Salle d'eau 2 : 5.49 m²
Cellier : 4.16 m²
WC : 1.95 m²
Téléphone :
Email:
- 99 m²
- 5 Pièces
- 4 Chambres
- Étage : 2 ème
- Ascenceur : oui
- Terrasse : 43 m²
- Année : 2025
- Neuf
- Référence : 96
Dans une petite copropriété de regroupant 23 appartements et 9 maisons, venez découvrir ce beau T5, de 99 m², en duplex au derniers étages, doté d’une terrasse de 43 m². Il se compose, au premier ...
- 135 m²
- 5 Pièces
- 4 Chambres
- Étage : 8 ème
- Ascenceur : oui
- Terrasse : 154 m²
- Année : 2025
- Neuf
- Référence : 49
Beau T5 neuf de 134 m², disponible immédiatement, aux septième et huitième étage d’une résidence offrant une belle place à la nature au travers de jardins suspendus. Les frais de notaire sont ...
- 101 m²
- 5 Pièces
- 4 Chambres
- Étage : 4 ème
- Ascenceur : oui
- Année : 2025
- Neuf
- Référence : 28
Beau T5, de 101 m² habitables, neuf, frais de notaire offerts, au troisième étage d'une résidence de 38 logements, située au Bouscat, entre l’hippodrome et le parc de la Chêneraie, le long du trajet du ...
Partagez cette page