
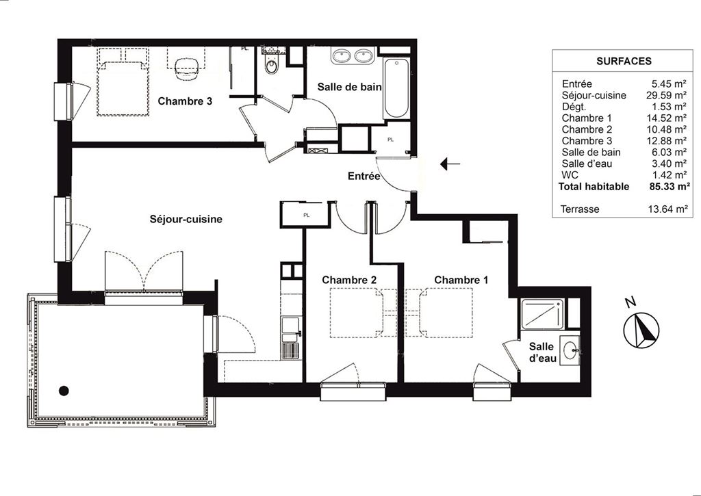
Dans une petite résidence de 23 appartements, répartis sur trois bâtiments, à 300 m du centre-ville et de la mairie, venez découvrir ce beau T4 de 85 m², au premier étage, avec ascenseur. Il se compose d'une entrée avec placard, d'un grand séjour, avec coin cuisine, ouvrant sur une belle terrasse couverte au Sud-ouest, d'une chambre parentale avec salle d'eau, de deux chambres, d'une salle de bain et d'un wc. Conforme à la norme RE2020, il dispose d'un chauffage par pompe à chaleur et d'un chauffe-eau thermodynamique. Il est doté de deux places de stationnement au sous-sol. Écoles et collège sont accessible à pied. Trois lignes de bus ont un arrêt dans un rayon de 200 mètres. Charges mensuelles 195 euros, taxe foncière 17 00 euros, honoraires à la charge du vendeur. Les informations sur les risques auxquels ce bien est exposé sont disponibles sur le site Géorisques : www.georisques.gouv.fr.
Ajouter au panier
Imprimer le bien
Référence : 103
Nb. de pièces : 4
Nb. de chambres : 3
Etage : 1 er
Ascenceur : oui
Surface habitable : 85.33 m²
Stationnement : Parking
Places en Extérieurs : 2
Surface terrasse : 13 m²
Accessibilité handicapée : oui
Chauffage : Pompe à chaleur air/air
État général : Neuf
Année de construction : 2025
En copropriété : oui
DPE : Non Renseigné
GES : Non Renseigné
Les Honoraires d'agence seront intégralement à la charge du vendeur
Bien en copropriété de 24 lots
Charges courantes : 2340 € / an
Pas de procédures en cours
Entrée : 5.45 m²
Séjour-cuisine : 0 m²
Chambre 1 : 14.52 m²
Salle d'eau : 3.4 m²
Chambre 2 : 10.48 m²
Chambre 3 : 12.88 m²
Salle de bains : 6.03 m²
Dégagement : 1.53 m²
WC : 1.42 m²
Téléphone :
Email:
- 100.8 m²
- 4 Pièces
- 3 Chambres
- Étage : 3 ème
- Ascenceur : oui
- Terrasse : 20 m²
- Année : 2024
- Neuf
- Référence : 69
Pessac-Alouette proche du parc Cazalet, des écoles, de la gare et de la piscine, bel appartement T4 de 101m² habitables, au deuxième étage. Il se compose d’une entrée, d’un grand ...
- 126 m²
- 4 Pièces
- 3 Chambres
- Étage :1 er
- Ascenceur : non
- Terrasse : 26 m²
- Année : 1812
-
- Référence : 77
Bel appartement T4, de 126 m², remis à neuf, seul logement au dessus d'un local commercial au rez-de-chaussée. Il dispose, au niveau rue, d'une entrée privée, d'où un escalier permet d'accéder ...
- 85.37 m²
- 4 Pièces
- 3 Chambres
- Étage : 4 ème
- Ascenceur : oui
- Terrasse : 76 m²
- Année : 2023
- Neuf
- Référence : 22
Beau T4, au dernier étage d'une petite résidence de 23 logements, située en lisière du programme d'aménagement urbain "Euratlantique". Ce nouveau quartier d'une superficie de 738 hectares dont ...
Partagez cette page