
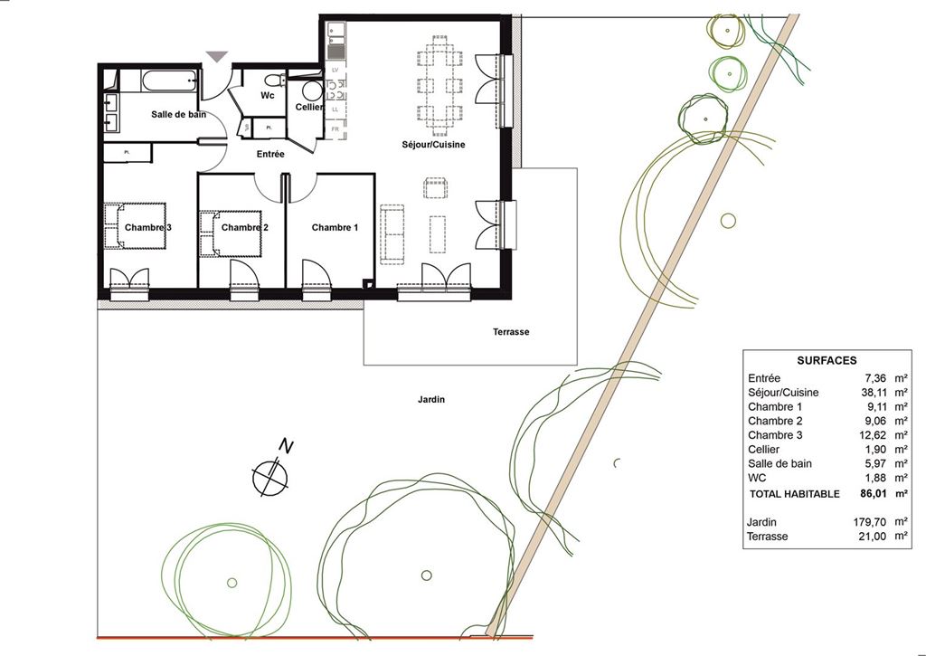
Bordeaux-Blanquefort, beau T4 de 86 m², en rez-de-jardin, d’une résidence de 44 logements, répartis sur trois bâtiments. Il se compose d’une entrée, d'une pièce de vie ouvrant sur une terrasse de 21 m², prolongée d'un jardin privatif, de trois chambres et d’une salle de bains, d'un cellier et d'un Wc. Conforme à la norme RE2025, il est équipé d’un chauffage électrique. Il dispose de 3 places de stationnement. Le centre de Blanquefort avec son marché, son cinéma se trouve à 150 m, la gare SNCF et le tram C à 1.2 km et le supermarché à 500 m. Écoles, collège et lycée sont accessibles à pied. Il sera disponible en décembre 2026. Taxe foncière 1300euros, charges mensuelles 80 euros. Les honoraires d’agence sont à la charge du vendeur. Les risques auxquels ce bien est exposé sont disponibles sur le site Géorisques: www.georisque.gouv.fr
Ajouter au panier
Imprimer le bien
Référence : 105
Nb. de pièces : 4
Nb. de chambres : 3
Surface habitable : 86.01 m²
Stationnement : Parking
Places en Extérieurs : 3
Surface jardin : 179 m²
Surface terrasse : 21 m²
Accessibilité handicapée : oui
État général : Neuf
Année de construction : 2026
En copropriété : oui
DPE : Non Renseigné
GES : Non Renseigné
Les Honoraires d'agence seront intégralement à la charge du vendeur
Bien en copropriété de 44 lots
Charges courantes : 1080 € / an
Pas de procédures en cours
Entrée : 7.36 m²
Séjour-cuisine : 38.11 m²
Chambre 1 : 9.11 m²
Chambre 2 : 9.06 m²
Chambre 3 : 12.62 m²
Salle de bains : 5.97 m²
Cellier : 1.9 m²
WC : 1.88 m²
Téléphone :
Email:
- 83.5 m²
- 4 Pièces
- 3 Chambres
- Étage : 9 ème
- Ascenceur : oui
- Terrasse : 7 m²
- Année : 2026
- Neuf
- Référence : 81
Appartement T4 neuf, dans une résidence de standing, entre le centre-ville de Bordeaux et le parc Bordelais. Situé au 2 ème étage et d'une superficie de 84 m², il offre un séjour-cuisine de 28 m², ...
- 85.33 m²
- 4 Pièces
- 3 Chambres
- Étage : 3 ème
- Ascenceur : oui
- Terrasse : 13 m²
- Année : 2025
- Neuf
- Référence : 103
Dans une petite résidence de 23 appartements, répartis sur trois bâtiments, à 300 m du centre-ville et de la mairie, venez découvrir ce beau T4 de 85 m², au premier étage, avec ascenseur. Il se compose ...
- 88 m²
- 4 Pièces
- 3 Chambres
- Étage : 9 ème
- Ascenceur : oui
- Terrasse : 8 m²
- Année : 2026
- Neuf
- Référence : 80
Appartement T4 neuf, dans une résidence de standing, entre le centre-ville de Bordeaux et le parc Bordelais. Situé au 7ème étage, il jouit d'une vue dégagée sur les toit et clochers de Bordeaux. D'une ...
Partagez cette page