
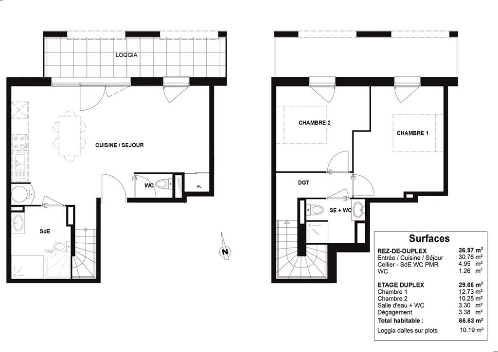
Dans une petite résidence hébergeant 10 logements et une crèche, joli T3 en duplex, de 67 m², au premier et deuxième étage. Il se compose, au premier niveau, d’un séjour-cuisine de 31 m², d’une salle d’eau et d’un wc et, à l’étage, de deux belles chambres et d’une salle d’eau avec wc. Production d’eau chaude, chauffage et climatisation sont assurés par une pompe à chaleur et un chauffe-eau thermodynamique. Il dispose d’une place de stationnement intérieure. La rue est calme. L’arrêt du tram B (Roustaing) se situe à 200 m ainsi que le centre commercial, la pharmacie et autres commerces. Il sera disponible début 2027. Taxe foncière 1000 euros, charges mensuelles 99 euros. Les honoraires sont à la charge du vendeur. Les risques auxquels ce bien est exposé sont disponibles sur le site Géorisques: www.georisque.gouv.fr
Ajouter au panier
Imprimer le bien
Référence : 98
Nb. de pièces : 3
Nb. de chambres : 2
Etage : 1 er
Surface habitable : 66.71 m²
Stationnement : Parking
Places en Extérieurs : 1
Chauffage : Pompe à chaleur air/air
État général : Neuf
Année de construction : 2026
En copropriété : oui
DPE : Non Renseigné
GES : Non Renseigné
Les Honoraires d'agence seront intégralement à la charge du vendeur
Bien en copropriété de 11 lots
Charges courantes : 1188 € / an
Pas de procédures en cours
Chambre 1 : 12.73 m²
Chambre 2 : 10.25 m²
Dégagement : 3.38 m²
Salle d'eau 1 : 4.95 m²
Salle d'eau-wc : 3.3 m²
Séjour-cuisine : 30.76 m²
WC : 1.26 m²
Téléphone :
Email:
- 68 m²
- 3 Pièces
- 2 Chambres
- Étage : 6 ème
- Ascenceur : oui
- Terrasse : 8 m²
- Année : 2026
- Neuf
- Référence : 99
Bordeaux-Mérignac, beau T3 de 68 m², au troisième étage d’une résidence de 52 logements, répartis sur trois bâtiments. Il se compose d’une entrée, d’une pièce de vie ...
- 75 m²
- 3 Pièces
- 2 Chambres
- Étage : 9 ème
- Ascenceur : oui
- Année : 2026
- Neuf
- Référence : 82
Appartement T3 neuf, dans une résidence de standing, entre le centre-ville de Bordeaux et le parc Bordelais. Situé au 2 ème étage et d'une superficie de 75 m², il offre un séjour-cuisine de 35 m², ...
- 95.3 m²
- 3 Pièces
- 2 Chambres
- Étage : 2 ème
- Ascenceur : non
- Terrasse : 22 m²
- Année : 2025
-
- Référence : 107
Grand appartement T3, de 95 m² habitables, en duplex dans Bordeaux intra-muros, près de la barrière Judaïque, dans un immeuble rénové à neuf. Il se compose, au niveau supérieur d’une ...
Partagez cette page