
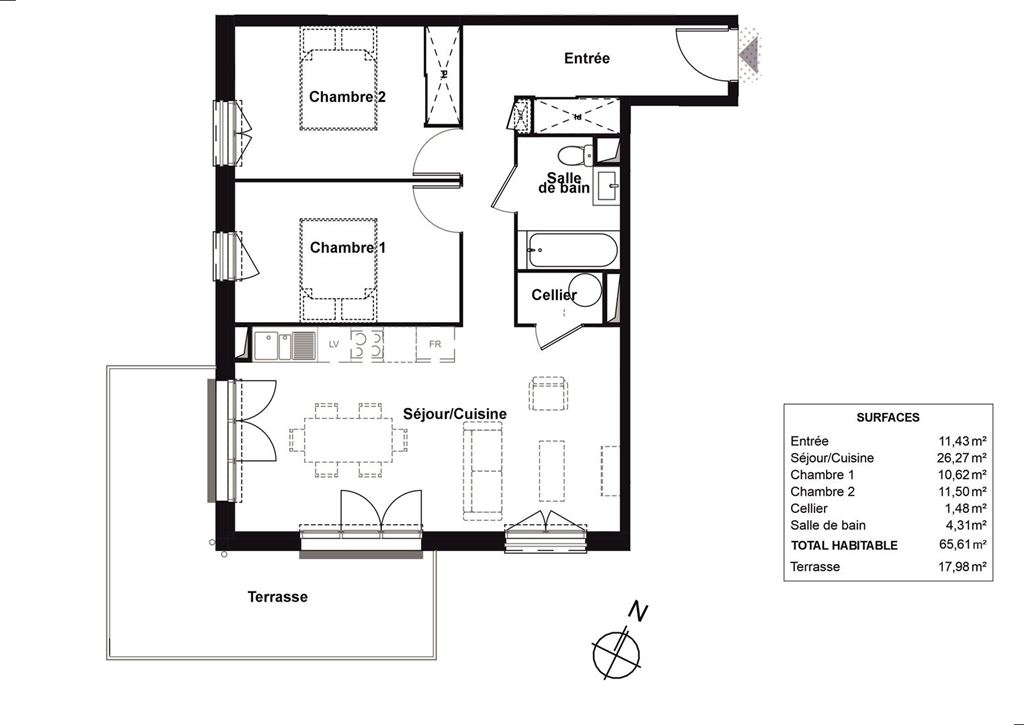
Bordeaux-Blanquefort, beau T3 de 66 m², au deuxième et dernier étage, avec ascenseur, d’une résidence de 44 logements, répartis sur trois bâtiments. Il se compose d’une entrée, d’une pièce de vie ouvrant sur une terrasse de 18 m², de deux chambres, d’une salle de bains, d’un cellier et d’un wc. Conforme à la norme RE2025, il est équipé d’un chauffage électrique. Il dispose de 4 places de stationnement. Le centre de Blanquefort avec son marché, son cinéma se trouve à 150 m, la gare SNCF et le tram C à 1.2 km et le supermarché à 500 m. Écoles, collège et lycée sont accessibles à pied. Il sera disponible en décembre 2026. Taxe foncière 800euros, charges mensuelles 90 euros. Les honoraires d’agence sont à la charge du vendeur. Les risques auxquels ce bien est exposé sont disponibles sur le site Géorisques: www.georisque.gouv.fr
Ajouter au panier
Imprimer le bien
Référence : 101
Nb. de pièces : 3
Nb. de chambres : 2
Etage : 2 ème
Ascenceur : oui
Surface habitable : 66 m²
Stationnement : Parking
Places en Extérieurs : 4
Surface terrasse : 18 m²
Accessibilité handicapée : oui
Chauffage : Individuel électrique
État général : Neuf
Année de construction : 2026
En copropriété : oui
DPE : Non Renseigné
GES : Non Renseigné
Les Honoraires d'agence seront intégralement à la charge du vendeur
Bien en copropriété de 44 lots
Charges courantes : 1080 € / an
Pas de procédures en cours
Entrée : 11.43 m²
Séjour-cuisine : 26.27 m²
Chambre 1 : 10.62 m²
Chambre 2 : 11.5 m²
Salle de bains : 4.31 m²
Cellier : 1.48 m²
Téléphone :
Email:
- 66.71 m²
- 3 Pièces
- 2 Chambres
- Étage : 2 ème
- Ascenceur : non
- Année : 2026
- Neuf
- Référence : 98
Dans une petite résidence hébergeant 10 logements et une crèche, joli T3 en duplex, de 67 m², au premier et deuxième étage. Il se compose, au premier niveau, d’un séjour-cuisine de 31 m², ...
- 95.3 m²
- 3 Pièces
- 2 Chambres
- Étage : 2 ème
- Ascenceur : non
- Terrasse : 22 m²
- Année : 2025
-
- Référence : 107
Grand appartement T3, de 95 m² habitables, en duplex dans Bordeaux intra-muros, près de la barrière Judaïque, dans un immeuble rénové à neuf. Il se compose, au niveau supérieur d’une ...
- 69 m²
- 3 Pièces
- 2 Chambres
- Étage : 7 ème
- Ascenceur : oui
- Neuf
- Référence : 100
À Bordeaux-Caudéran, à 300 m du Parc Bordelais, beau T3 de 69 m², au premier étage d’une petite résidence de 17 logements. Il se compose d’une entrée, d’une pièce de vie ...
Partagez cette page