
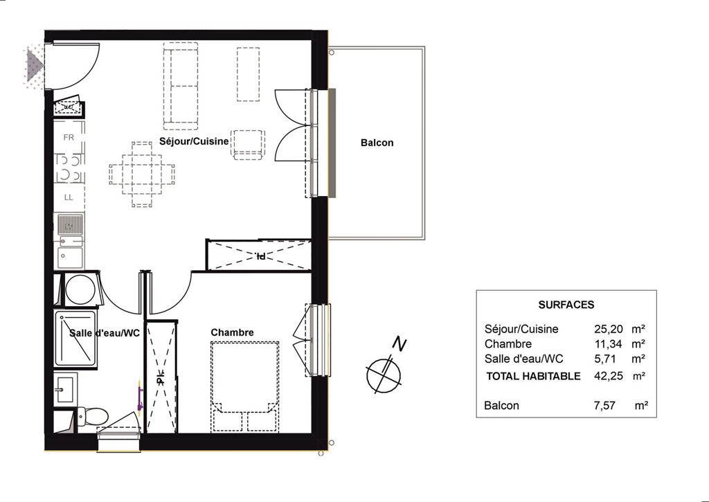
Bordeaux-Blanquefort, beau T2 de 42 m², au deuxième et dernier étage, avec ascenseur, d’une résidence de 44 logements, répartis sur trois bâtiments. Il se compose d’une pièce de vie ouvrant sur une terrasse de 8 m², d'une belle chambres et d’une salle de bains. Conforme à la norme RE2025, il est équipé d’un chauffage électrique. Il dispose de 2 places de stationnement. Le centre de Blanquefort avec son marché, son cinéma se trouve à 150 m, la gare SNCF et le tram C à 1.2 km et le supermarché à 500 m. Écoles, collège et lycée sont accessibles à pied. Il sera disponible en décembre 2026. Taxe foncière 650euros, charges mensuelles 50 euros. Les honoraires d’agence sont à la charge du vendeur. Les risques auxquels ce bien est exposé sont disponibles sur le site Géorisques: www.georisque.gouv.fr
Ajouter au panier
Imprimer le bien
Référence : 104
Nb. de pièces : 2
Nb. de chambres : 1
Etage : 2 ème
Ascenceur : oui
Surface habitable : 42.25 m²
Stationnement : Parking
Places en Extérieurs : 2
Surface terrasse : 7 m²
Accessibilité handicapée : oui
Chauffage : Individuel électrique
État général : Neuf
Année de construction : 2026
En copropriété : oui
DPE : Non Renseigné
GES : Non Renseigné
Les Honoraires d'agence seront intégralement à la charge du vendeur
Bien en copropriété de 44 lots
Charges courantes : 600 € / an
Pas de procédures en cours
Séjour-cuisine : 25.2 m²
Chambre : 11.34 m²
Salle d'eau : 5.71 m²
Téléphone :
Email:
Partagez cette page